
> Get directions
|
Glendale Home
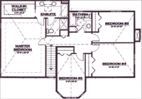
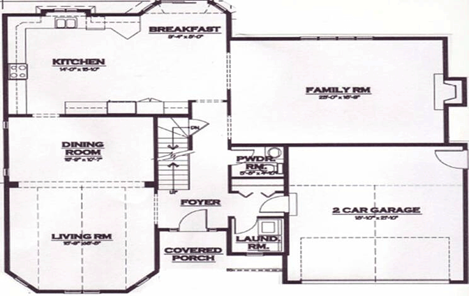
The Glendale is a design balanced between luxury and country. This beautiful layout is spacious and open. The Gourmet Chef in your family will love this expansive, functional yet elegant island kitchen. The kitchen and family room flow into one and are hosted by a gas fireplace located at the end of the family room warming this open area. The vaulted living room ceiling is enhanced by a full-height window. Bedrooms are located upstairs, the highlight is the master suite, with a windowed walk in closet and magnificent 5 piece ensuite. Three additional bedrooms share a bath that includeds additional closet space for linen.
|